Palokatkot

Palo-osastoinnin ja palokatkojen merkitys

Rakennus jaetaan palo-osastoihin palon ja savun leviämisen rajoittamiseksi, poistumisen turvaamiseksi, pelastus- ja sammutustoimien helpottamiseksi sekä omaisuusvahinkojen rajoittamiseksi. Palo-osastot rajautuvat osastoiviin rakennusosiin, jotka tulee tehdä niihin liittyvine laitteineen ja varusteineen siten, että palon leviäminen osastosta toiseen estyy määrätyn ajan.

Osastoivien rakennusosien kuten seinien ja välipohjien läpi joudutaan usein viemään mm. vesi- ja viemäriputkia, ilmanvaihtokanavia ja sähköjohtoja. Näiden läpivieminen edellyttää, ettei rakennusosan osastoivuutta olennaisesti heikennetä. Palokatkolla tarkoitetaan läpäistävän rakenteen tiivistämistä vaadittavaa palo-osastointia vastaavaksi.

Palokatkotuotteiden ja läpivientiratkaisujen kelpoisuus

Palokatkotuotteiden kelpoisuus voidaan osoittaa varmennettujen sertifikaattien avulla. Eurooppalainen tekninen hyväksyntä (ETA) on varmennettu sertifikaatti, joka johtaa CE-merkintään. Ellei CE-merkintää ole, on tuotteen kelpoisuus selvitettävä etukäteen rakennuspaikkakohtaisesti. Selvitys voi perustua esimerkiksi vapaaehtoiseen VTT-sertifikaattiin, jonka tulee sisältää myös selvityksen tuotteiden pitkäaikaiskestävyydestä.

Sertifikaatti on voimassa vain, kun toteutus tehdään sertifikaatin liitteenä olevien asennusohjeiden ja -detaljien mukaisesti. Detaljit sisältävät mm. rajoituksia läpivientiaukon koolle ja läpimenevien johdotusten tyypeille, dimensioille ja lukumäärille sekä sijoittelulle.

Johdotusten reittejä ja niitä varten tehtäviä läpivientiaukkoja suunniteltaessa tulee varmistaa, että asennuksen jälkeen aukko on paloteknisesti tiivistettävissä jollain palokatkotuotteella kyseistä tuotetta koskevien sertifikaatissa varmennettujen asennusohjeiden mukaisesti.

Palokatkosuunnitelma

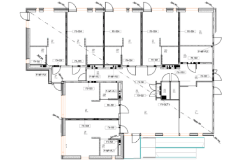
Palokatkosuunnitelma on rakennushankkeeseen ryhtyvän asiantuntijan, ennen kohteen toteutusta, laatima erityissuunnitelma, joka laaditaan muiden erityissuunnitelmien (rakenne-, lvi-, sähkösuunnitelmat) laatimisen rinnalla ja yhteistyössä näiden alojen erityissuunnittelijoiden kanssa. Palokatkosuunnitelman runkona on pohjapiirustus, johon on merkitty palo-osastojen rajat ja osastointiluokat. Piirustuksen pohjana voidaan käyttää esim. reikäpiirustusta, vv-piirustusta tai sähköpiirustusta.

Pohjapiirustukseen merkitään kunkin läpiviennin kohdalle käytettävä palokatkotyyppi esimerkiksi kirjain- tai numerotunnuksin. Pohjapiirustusta täydentävissä detaljipiirroksissa esitetään kukin läpivienti reunaehtoineen (sallitut läpivietävät johdotukset mahdollisine reuna- ja keskiöetäisyyksineen, läpivientiaukkojen sallitut koot, osastoivien rakenteiden materiaalit ja paksuudet).

Palokatkosuunnitelmaan sisältyy yleensä myös tekstiosa, jossa voidaan esittää vaatimuksia mm. asentajan pätevyydelle, tarkastusten järjestämiselle sekä tarkastusten dokumentoinnille, palokatkojen merkitsemiselle ja tuotteen käyttöiälle.

Palokatkosuunnitelman voi laatia rakenne-, LVI-, sähkö-, arkkitehti- tai paloalan suunnittelija.

Suunnitelmassa esitetään kullekin läpiviennille yksi vaatimukset täyttävä ratkaisu. Mikäli suunnitellusta ratkaisusta halutaan poiketa, tulee työmaan vastaavan työnjohtajan tai erityisalan työnjohtajan ottaa yhteyttä suunnitelman laatijaan, jonka tulee tehdä tarvittavat suunnitelmamuutokset niin, että ne täyttävät läpiviennille asetettavat viranomaisvaatimukset. Tuotenimillä suunniteltaessa suunnitelmissa ei saa käyttää termiä "tai vastaava" tms., koska vaatimukset täyttävien asennusdetaljien erilaisuudesta johtuen ei valintaa voida jättää urakoitsijan tehtäväksi vaan tehtävä on palautettava ao. suunnittelijalle.

Palokatkoasennusten jälkeen palokatkoasiakirjat vielä tarkistetaan niin, että ne vastaavat toteutuneita asennuksia. Toteutusasiakirjat ja käytettyjen rakennustuotteiden tarkastus- ja huolto-ohjeet liitetään rakennuksen käyttö- ja huolto-ohjeeseen.

Rakentamislupa

Rakennushankkeeseen ryhtyvän tulee huolehtia, että osastoivien rakennusosien aukotukset ja läpivietävät johdotukset ym. ovat käytettävien palokatkotuotteiden sertifikaattien asennusohjeiden mukaisia ja läpivientien tiivistykset tehdään huolellisesti ohjeiden mukaan. Tarkastusmerkinnät toteutuksen vaatimusten mukaisuudesta tulee tehdä rakennustyön tarkastusasiakirjaan.

Alla esimerkki palokatkosuunnitelman pohjapiirroksesta ja yhdestä läpivientidetaljista.

Esimerkkikuva palokatkosuunnitelman pohjapiirroksesta.
Palokatkosuunnitelman pohjapiirros.
Detaljipiirros läpiviennin palokatkosta.
Detaljipiirros läpiviennin palokatkosta.
Päivitetty 4.6.2025